Großzügiges Platzangebot optimal genutzt.
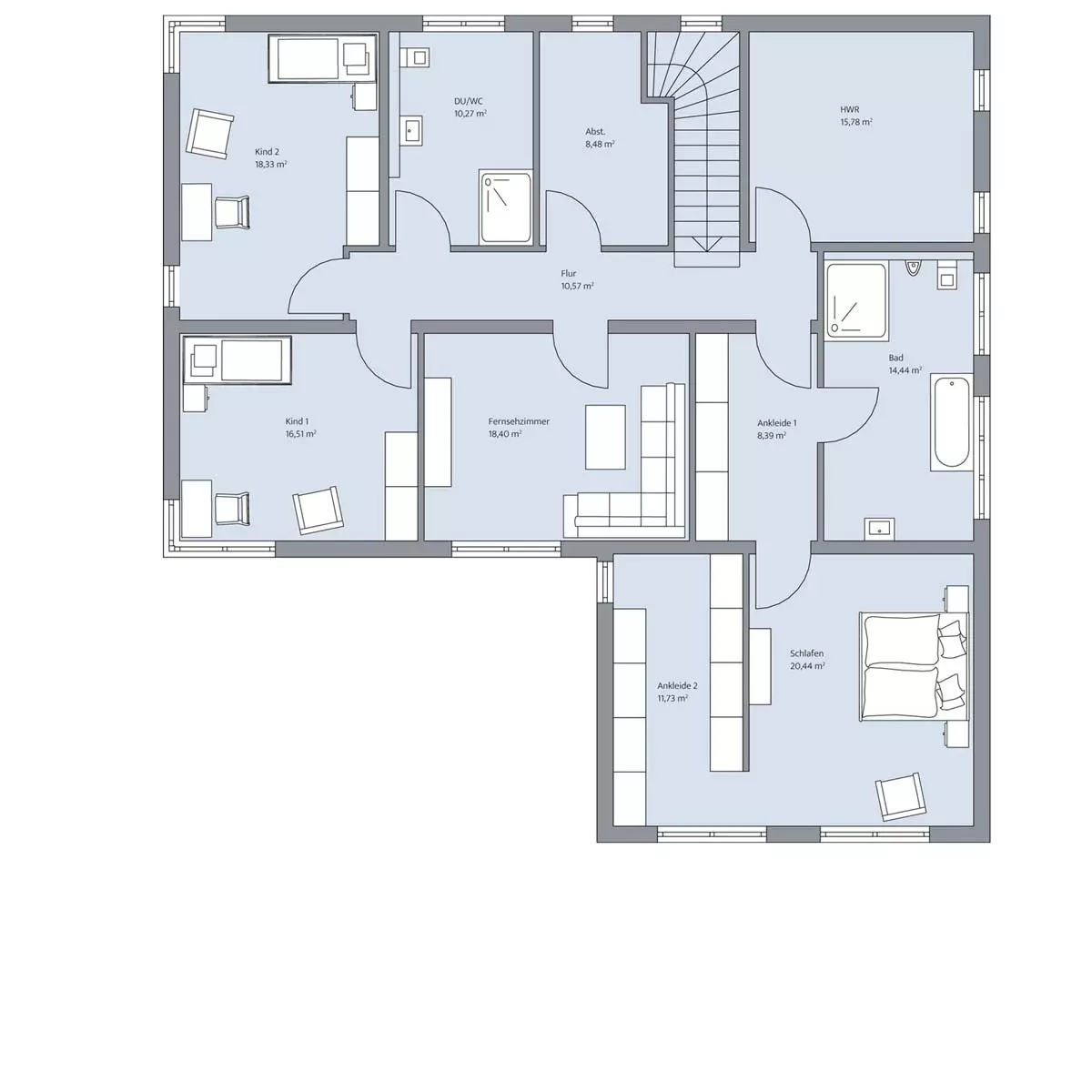
Puristisch im Kubus-Stil präsentiert sich die Villa der Familie Zech. Hinter der eleganten Fassade in weiß und anthrazit und den hochmodernen Fenstern teils über Eck erstreckt sich eine großzügige Wohnfläche von rund 282 m², die in ihrer Funktionalität optimal ausgenutzt wurde. So beeindrucken im Erdgeschoss ein fast 60 m² großer Wohn-/Ess-/Küchenbereich sowie ein eigener Fitnessraum. Im Obergeschoss findet neben drei Schlafzimmern mit zwei Bädern und zwei Ankleidebereichen sogar noch ein Fernsehzimmer Platz.














