Viel Platz für Familie und Gäste.
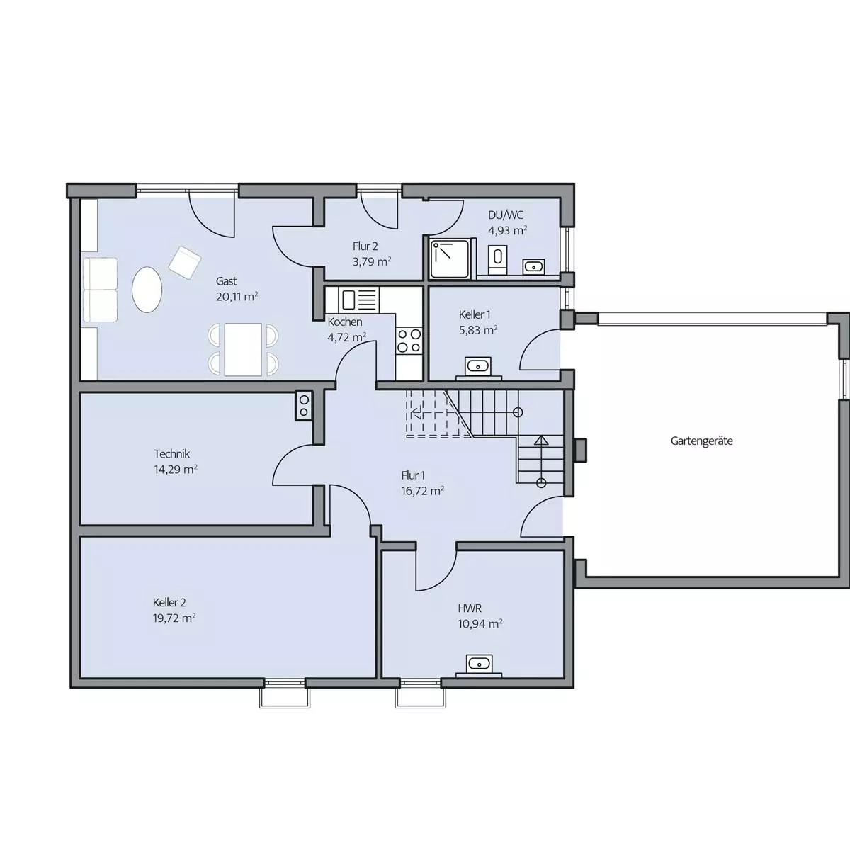
Das klassich-traditionell gehaltene Haus der Familie Tauber beeindruckt auf seiner Wohnfläche von insgesamt rund 208 m² mit einer äußerst durchdachten und vielfältigen Raumaufteilung. Im Untergeschoss befindet sich neben den Keller-, Abstell- und Technikräumen ein einladender Gästebereich mit eigenem Bad und sogar einer angeschlossenen eigenen Küche. Das Erdgeschoss wird durch den offenen Bereich zum Wohnen, Essen und Kochen sowie durch das Arbeitszimmer und ein Gäste-WC sinnvoll ausgenutzt. Durch die Diele gelangt die Familie direkt in die großzügige Garage, bzw. mit den Einkäufen trockenen Fußes zurück ins Haus. Vom zentralen Flur im Dachgeschoss gehen das Elternschlafzimmer, die beiden Kinderzimmer, das Ankleidezimmer sowie der Badbereich ab. Wunderschön vor dem Zu-Bett-Gehen oder morgens zum Wachwerden: der vom Elternschlafzimmer zugängliche, ganz private Balkon. Auf dem Dach sorgt eine Solaranlage kostenbewusst und umweltschonend für Energie.
















