Das Raumwunder-Zuhause für vier Personen.
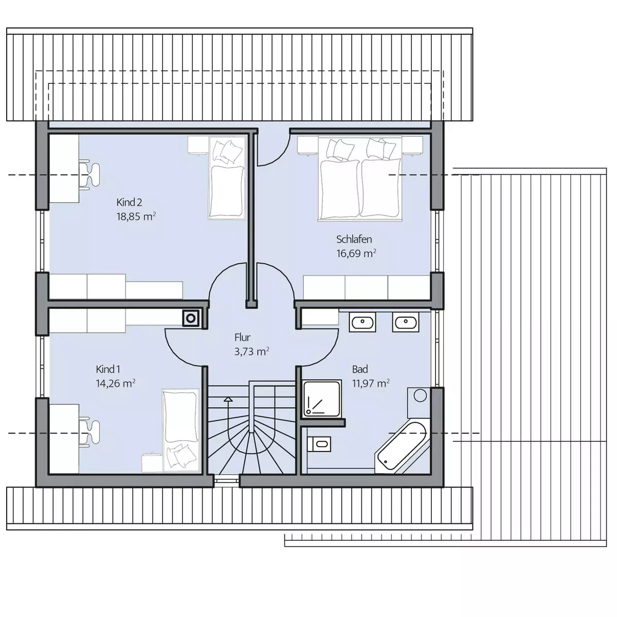
Das Haus der Familie Ostermann ist ein Multitalent und fügt sich problemlos in jedes Baugebiet ein. Mit dem flachen Satteldach, dem 150 cm hohen Kniestock und dem eleganten Grau-Weiß-Kontrast ergibt das Haus ein in sich stimmiges Bild. Die anschließende Garage bedeckt ein abgeschlepptes Satteldach, dessen Überstand über die vordere Fassade weiterläuft und dort den Eingang vor Wind und Wetter schützt. Im Inneren spielt das Haus der Familie Ostermann alle Vorzüge einer modernen L-Form aus. Kommunikatives Zentrum ist der Essplatz zwischen Küche mit Frühstücksbar und Wohnbereich, mit Blick zu Terrasse und Garten. Schmale Fensterelemente sorgen für viel Licht, schützen aber gleichzeitig vor Blicken von draußen. Eine Diele mit separater Garderobe, der direkte Garagenzugang und ein großzügiges Gäste-WC runden das Erdgeschoss ab. Im Dachgeschoss sorgt der hohe Kniestock für angenehmen Wohnkomfort. Alle drei Zimmer verfügen über französische Balkone, das Bad lässt mit Badewanne, Doppelwaschbecken und Dusche keine Wünsche der Familienmitglieder offen. Weitere Raumreserven gibt es im Keller, wo neben einem Stau- und dem Haustechnikraum, ein durch Lichthöfe erhelltes Arbeitszimmer und ein ebenfalls mit Lichthöfen versehener Hobbyraum zur Verfügung stehen.
















