Ein Bungalow, der sich sehen lassen kann.
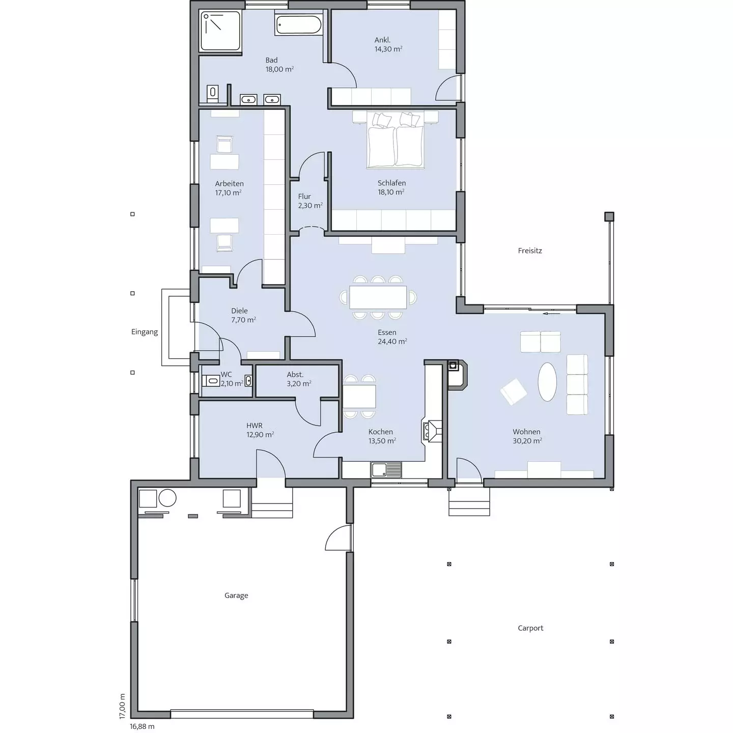
Wer ein großes Grundstück besitzt, der baut in die Weite und nicht in die Höhe. So wie es die Eheleute Dittmer getan haben. Das Resultat ist ein weitläufiger Bungalow, in dessen Innerem man sich fast verlaufen kann. Großzügig geplant und stilvoll umgesetzt kann man hier Wohnen und Arbeiten unter einem Dach hervorragend verbinden. Wie ein kleines Anwesen wirkt das Gebäude mit seiner praktischen Garage, die direkt in den Hauswirtschaftsraum führt. Perfekt mitgedacht und für jede Lebenssituation bestens geeignet.














